23526 Pine Lake Street, LAND O LAKES, FL 34639
Active
Property Photos
Would you like to sell your home before you purchase this one?
Priced at Only: $415,000
For more Information Call:
Address: 23526 Pine Lake Street, LAND O LAKES, FL 34639
Property Location and Similar Properties
- MLS#: TB8486435 ( Residential )
- Street Address: 23526 Pine Lake Street
- Viewed: 1
- Price: $415,000
- Price sqft: $196
- Waterfront: No
- Year Built: 1990
- Bldg sqft: 2114
- Bedrooms: 3
- Total Baths: 2
- Full Baths: 2
- Garage / Parking Spaces: 2
- Additional Information
- Geolocation: 28.2127 / -82.4271
- County: PASCO
- City: LAND O LAKES
- Zipcode: 34639
- Subdivision: Lake Padgett
- Provided by: LPT REALTY, LLC
- Contact: James Boardman Jr., PA
- 877-366-2213

- DMCA Notice
-
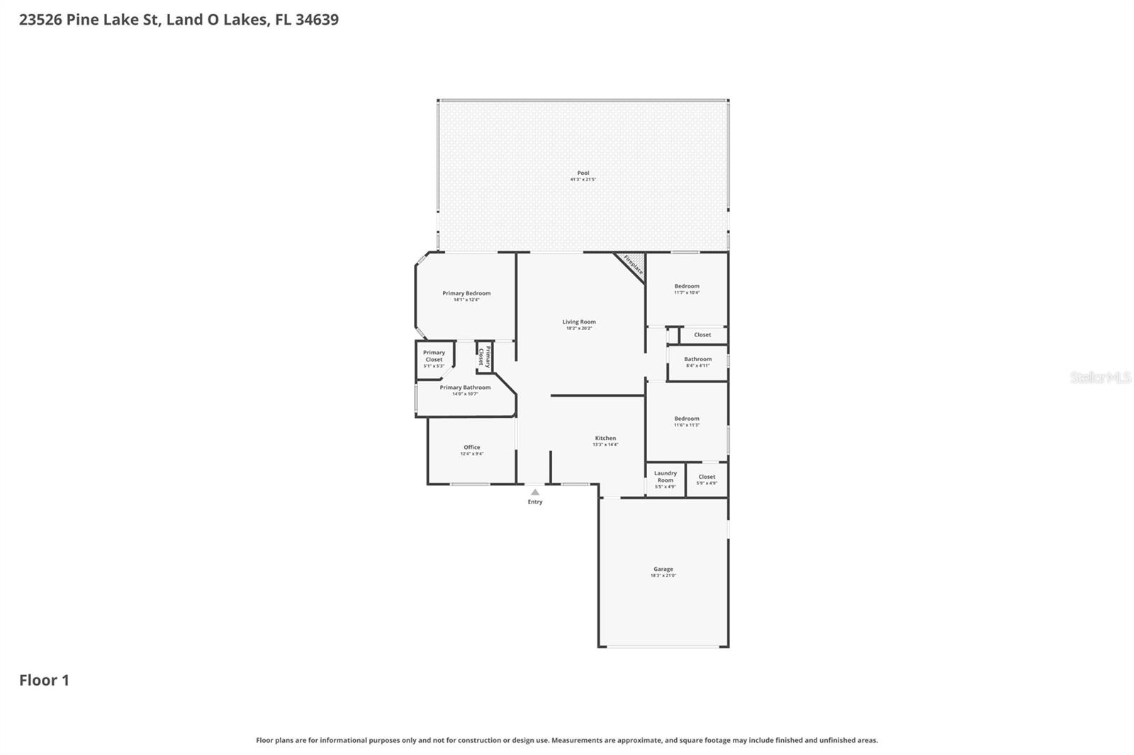
DescriptionSaltwater pool home Paid off solar panels New roof 2023 No CDD Fenced yard with double gate 3 bedroom, 2 bathroom pool home offering approximately 1,690 sq ft in the Lake Padgett East community of Land O Lakes. This single story home features a split bedroom floor plan and an open layout connecting the kitchen, living, and dining areas, providing functional space for everyday living and entertaining. The kitchen includes granite countertops, stainless steel appliances, abundant cabinetry, and a new oven (2023), with direct flow into the main living space. A flexible dining area with barn door can function as a home office, den, or additional living area. The primary suite includes an en suite bathroom and direct access to the screened pool area. Outdoor features include a screened saltwater pool with new pump (2024), fenced backyard with double gate for additional access or storage, and updated landscaping with new Zoysia sod (2025) and refreshed mulch and shell. Additional features include an interior laundry room and 2 car garage. Major updates include a new roof (2023), AC system (2021), and paid off solar panels (installed 2018, reinstalled 2023), contributing to energy efficiency and reduced utility costs. No CDD. Lake Padgett East residents have access to a community center featuring a resort style pool, tennis courts, basketball courts, fitness center, playground, and a neighborhood bar with discounted beverages. HOA provides access to these amenities. Located less than 2 miles from Land O Lakes Recreation Complex, Plantation Palms Golf Club (public course), and Crunch Fitness. Publix Super Market at Collier Commons is approximately 3 miles away and includes Starbucks, Walgreens, Moes Southwest Grill, and Chilis. Convenient access to SR 54 and US 41 provides connectivity to surrounding areas. Pine View Elementary School is nearby. 3D tour available. NEARBY AMENITIES Land O Lakes Recreation Complex
Payment Calculator
- Principal & Interest -
- Property Tax $
- Home Insurance $
- HOA Fees $
- Monthly -
For a Fast & FREE Mortgage Pre-Approval
Apply Now
Apply NowFeatures
Building and Construction
- Covered Spaces: 0.00
- Exterior Features: Rain Gutters, Sliding Doors
- Flooring: Hardwood, Tile
- Living Area: 1690.00
- Roof: Shingle
Garage and Parking
- Garage Spaces: 2.00
- Open Parking Spaces: 0.00
Eco-Communities
- Pool Features: In Ground
- Water Source: Public
Utilities
- Carport Spaces: 0.00
- Cooling: Central Air
- Heating: Central
- Pets Allowed: Cats OK, Dogs OK
- Sewer: Public Sewer
- Utilities: BB/HS Internet Available, Cable Connected, Electricity Available, Phone Available, Sewer Available, Water Available
Finance and Tax Information
- Home Owners Association Fee: 52.00
- Insurance Expense: 0.00
- Net Operating Income: 0.00
- Other Expense: 0.00
- Tax Year: 2025
Other Features
- Appliances: Dishwasher, Disposal, Electric Water Heater, Microwave, Range, Refrigerator
- Association Name: Lisa Evans
- Country: US
- Furnished: Unfurnished
- Interior Features: High Ceilings, Open Floorplan, Primary Bedroom Main Floor, Split Bedroom, Stone Counters, Thermostat
- Legal Description: PINE LAKE PHASE 3 PB 28 PGS 11-13 LOT 4 BLOCK 1 OR 9143 PG 2598
- Levels: One
- Area Major: 34639 - Land O Lakes
- Occupant Type: Owner
- Parcel Number: 19-26-20-003.C-001.00-004.0
- Zoning Code: R2
Similar Properties
Nearby Subdivisions
Conners Lakefront Estates
Dupree Lakes
Dupree Lakes Ph 01
Dupree Lakes Ph 02
Dupree Lakes Ph 03a
Dupree Lakes Ph 1
Dupree Lakes Ph 3a
Dupree Lakes Ph I
Eagle Crest At Sable Ridge Ph
Enclave Ph 01
Enclave Ph 02
Enclaveterra Bella Ph 1
Enclaveterra Bella Ph 23
Enclaveterra Bella Ph 24
Grand Oaks Ph 02
Grand Oaks Phase 1
Grove Shore
Heron Point At Sable Ridge Ph
Lake Joyce Add
Lake Padgett
Lake Padgett Estates
Lake Padgett Estates East
Lake Padgett Pines
Lake Padgett South
Manorslk Padgett
Metes And Bounds
North Grove Add
Oasis
Plantation Palms Ph 02a
Plantation Palms Ph 02b
Plantation Palms Ph 04d
Plantation Palms Ph 06
Sable Ridge Ph 3a
Sable Ridge Ph 6b2
South Grove Add
Stagecoach Village 02 Ph 01
Stagecoach Village 03
Stagecoach Village 05
Stagecoach Village 07 Ph 02
Stagecoach Village Prcl 04 Ph
Stagecoach Vlgpcl 7ph 2
Swann Lake
Terra Bella
The Landings At Bell Lake. Pha
Twin Lake Ph 02c
Twin Lake Phase One
Valencia Gardens Ph 03
Valencia Gardens Ph 3
- Trudi Geniale, Broker
- Tropic Shores Realty
- Fax: 800.541.3688
- Mobile: 619.578.1100
- trudigen@live.com



































































